2610个喜欢
| 小区名称 | 华邦新华城 | 案例户型 | 二居室 | 房屋面积 | 110m² |
| 装修风格 | 简约 | 装修价格 | 0.00万 | 设计师 | 王雷 |

项目地址:华邦新华城
设计风格:现代简约
最好的装修风格就是把喜欢的一切放进你的房子,借一点干净的阳光,让生活怦然心动,让一切的美好想象,落实到真实的家中。
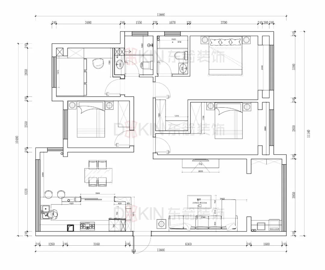
设计平面图

整体以现代简约为主基调,空间通透让整体更有美感。
1.厨房为L型设计,墙面镂空做了玻璃和西厨台面更显档次。
2.餐厅与厨房们的区域做了酒柜满足储存和美化空间的作用。
3.次卧做的榻榻米更具实用感和烘托整体空间层次感。
4.电视背景墙采用的是岩板、木饰面、壁台加组合柜设计,现代感十足。
「客厅」时代的节奏匆匆,生活的状态紧促
The rhythm of The Times in a hurry, life state of compactness

入眼用色彩纯度传递细腻的温感,白灰色的地砖色调充满质感,让客厅显得既沉稳也不失生动感。

客厅整体南北通透,空间宽敞,岩板和壁台的背景墙,以柔和简单的低饱和度黑白灰搭配装饰,自然舒适。

入门之后的视野是敞开式的客厅,在偏浅色的墙面与深色沙发的相互衬托下,更加简洁舒适。
「餐厅」 用时间和空间去停止消耗,去享受生活
With time and space to stop consumption, to enjoy life


在餐厅的设计上,墙面与地砖的颜色交相辉映。旁边的酒柜提供更多的存储空间,一家人用餐其乐融融。

在有限的空间内,做了集成灶,在不浪费空间的前提下,配备齐全的厨房用具,同时拥有完美的烹饪体验。

浴室用玻璃隔断做了干湿分离,透明玻璃让空间更通透,浴室柜碰撞出有格调的质感。
「卧室」 人生就像一场旅行,而家便是旅途的终点
Life is like a travel, and home is the end of the journey

主卧简洁大方,装饰不必复杂,点到为止。空间层次分明,呈现简介而又丰富的气质。

卧室空间细腻的材质干净澄明,勾勒出空间格调,升华生活质感,深浅色之间的搭配给人一种舒适之感。
—— 知精准报价 避装修深坑 ——