全国免费咨询服务热线
15955917735
精选作品
SELECTED WORKS
值得客户信赖 成就员工梦想
      当前位置: 首页 > 精选作品 > 富力院士廷
富力院士廷
作品来源:东箭装饰 栏目:精选作品 发布时间:2022-04-20

1689个喜欢

小区名称 富力.院士廷 案例户型 三居室 房屋面积 140m²
装修风格 现代 装修价格 0.00万 设计师 卢兴宇 
作品详情

 

慢品人间烟火色 

闲观人间岁月长

 项目地址/富力院士廷

 设计风格/现代轻奢 140㎡

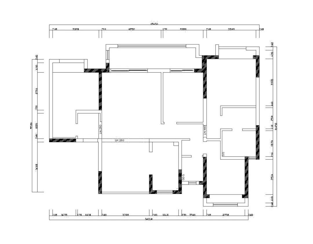
设计平面图

原始结构图

 

 


客厅

 

岩板加木饰面和线条组合成的温馨客厅空间,扑面而至的是一股温暖的气息。繁杂的工作之后,打开家门,让疲惫的身躯得到松弛的释放。

 

 

 

 

餐厅

 

 

餐厅桌椅摆放规整且井然有序,美味需要共享,合理构造出多人用餐的区域。让你在简单舒适的空间里,尽享美食的乐趣。

 

 

主卧

 

 

 

次卧

 

 

 

书房

 

 

 

阳台

 

 

通透的阳台空间,呼唤出内在最初的本心。洗去一身风尘疲劳,闲暇之时在阳台俯瞰人间烟火自然而然。

×

算一算,你家装修要花多少钱?

—— 知精准报价 避装修深坑 ——

您的报价已生成完毕

  • 材料费用:21000
  • 人工费用:39000
  • 设计费用:0
  • 管理费用:0
已有 位业主预约
*您的隐私我们将为您严格保密
X